
Denver, South Park and Pacific Railroad
DSP&P Box Cars: History,
Photos, Plans
The first order for rolling stock
on the DSP&P went out in 1874 for 30 flat cars, 5 box cars, 5
coal cars, a coach, a combine, and 6 excursion cars. This
initial batch of cars plus 2 small locomotives were sufficient
for construction and revenue service for the next four years.
Subsequent orders over the next 10 years brought the total fleet
of freight cars up to about 1300.
Like most railways,
the DSP&P roster was dominated by boxcars, nearly 600 of them,
delivered in 12 orders across 11 years. Many did not survive the
rigors of rough service but a fair number made it to the C&S
era.. All were painted oxide red with white lettering on sides
and ends. They had double-board wood roof. Many had a small door
in one end for loading lumber. Many had ladders on the right end
of each side; some had hand grabs. There were no steps and no
grabs on the left. A few older cars had a ladder on each end
wall and nothing on the sides, so there was lots of variety.
|
DSP&P RR BOX CARS 1874 -
1898 |
|
ORIG # |
TYPE |
1885 # |
LENGTH |
MFG |
BUILT |
|
500-504 |
Box |
== |
23 |
Hallack |
1874 |
|
512-514 |
Box |
24082-24103 |
26 |
DSP |
1878 |
|
515-529 |
Box |
26 |
B&S |
1878 |
|
530-554 |
Box |
26 |
Litchfield |
1879 |
|
560-739 |
Box |
24104-24275 |
26 |
Litchfield |
1879 |
|
740-799 |
Box |
24276-24410 |
27 |
UP |
1882 |
|
800-849 |
Box |
27 |
UP |
1883 |
|
850-889 |
Box |
27 |
UP |
1883 |
|
890-919 |
Charcoal |
24041-24074 |
31 |
UP |
1883 |
|
920-969 |
Box |
24411-24570 |
30 |
UP |
1883 |
|
970-1049 |
Box |
30 |
Peninsular |
1883 |
|
1080-1099 |
Box |
30 |
Peninsular |
1884 |
|
== |
Box |
24075-24081 |
24 |
Lamothe ? |
1885 |

HISTORY
The first DSP&P
boxcars #500 to 504 were short 23 footers, built by Hallack Brothers
in Denver in 1874, using castings and
trucks from the east. They were gone by 1885.
Three 26 footers, DSP&P
512 to 514, were built by DSP&P in 1878.
The number gap was filled by refrigerator cars 505 to 511. This is
confusing since these were supposedly delivered four years after
the number gap was created. Also in 1878, Barney and Smith delivered
15 26-foot boxcars #515 to 529.
In 1879, Litchfield delivered a batch of 25 cars numbered DSP&P 530
to 554, and a second batch of 180 26-foot cars numbered 560 to 739. The number gap was again filled by a group of
refrigerator cars that also appear to have been built two years
after the gap was created. All the 26 foot cars ended up in the
24082 to 24275 series in 1885.
Union Pacific Omaha shops produced 150 27-foot boxcars in 1882 and
1883 in 3 batches of 60, 50, and 40 cars. These were DSP&P #740 to
889. They became 24276 to 24410 after 1885.
Surviving 24, 26, and 27 foot boxcars ended up in the C&S 7200 -
7699 series.
Still in 1883, 30 longer
and taller 31-foot outside braced boxcars were built by UP as
charcoal cars, numbered 890 to 919, renumbered to 24041 to 24074. On
the C&S, they were converted to standard gauge trucks and numbered
979 to 997.
DSP&P #920 to 1099 were 30-foot cars from UP (50 cars in 1883)and
Peninsular (130 cars in '83 and '84). The 30-footers were renumbered
into the 24411 to 24570 series in 1885.
DSP&P #24075-24081 are
listed as 24 foot 20 ton capacity cars in the 1885 roster. These are
not the original 1874 23 foot cars and speculation suggests they may
have been LaMothe pipe-framed design.

DSP&P #501, a 23' boxcar on the author's garden railway.


Some of the boxcars on the author's garden railway in Alberta,
Canada
PHOTO
GALLERY
DSP&P Boxcar #883

DSP&P boxcar 608 awaiting cosmetic restortaion at Como roundhouse in
2010. (Photo from DSP&P website)

DSP&P boxcar 609 circa 1883 - 84. (Photo from DSP&P website)

DSP&P Boxcar #801 and Reefer
#1057

DSP Boxcar #24141

DSP&P freight train after 1885 with old and new lettering schemes

String of DSP(P boxcars, with Masom Bogie on the point.

The rest of the train, with Waycar

Hartford Products craftsman kit of DSP&P Boxcar


DSP&P
Boxcar #816 CAD
image by Bill Gould.
See
Bill's website
for many more images, exact-scale plans, and fine art prints for
sale.

A 1:20.3 model of a 31 foot DSP&P charcoal car by Peter Bunce

Peter's model of a conventional DSP&P boxcar

Comparative size of the charcoal boxcar and the normal car.
PLANS
by John Maxwell
DSP&P 27 Foot Box Cars 500 to 899

DSP&P
27 Foot 900 Series Boxcars

PLANS
by Ron Rudnick
DSP&P 23 Foot Box Car
#501

DSP&P 26 Foot Box Car
#525 and 517

DSP&P 26 Foot Box Car
#618

DSP&P 27 Foot Box Car
#874

DSP&P 27 Foot Box Car
#931

DSP&P 30 Foot Outside Braced Box Car
#918 for Charcoal Service

DSP&P 30 Foot Outside Braced
Box Car #918

DSP&P / DL&G 26 Foot Box Car
#24145 after 1885

DSP&P / DL&G 26 Foot Box Car
#24175

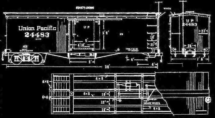
DSP&P / DL&G 30 Foot
Box Car #24483

PLANS
by Others
DSP&P
27 Foot Boxcar #608

DSP&P
27 Foot 900 Series Boxcars
